To find reactions for asymmetrical beams:
• Draw an abstract beam diagram to illustrate computations
• Use Σ M = 0 at one support to find reaction at other support
• Verify results for vertical equilibrium
1 Floor framing
2 Abstract beam diagram
Support reactions:
Alternate method (use uniform load directly)
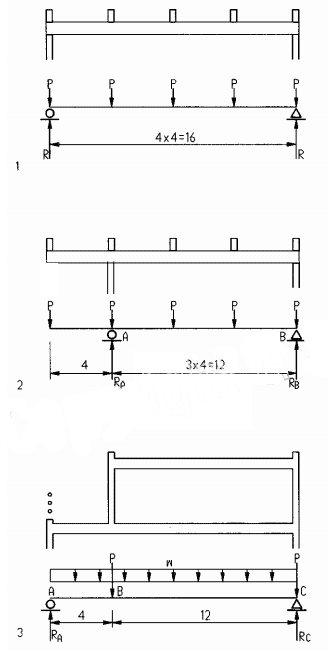
1 Simple beam with point loads
2 Beam with overhang and point loads
3 Beam with uniform load and point load (wall)
• Draw an abstract beam diagram to illustrate computations
• Use Σ M = 0 at one support to find reaction at other support
• Verify results for vertical equilibrium
1 Floor framing
2 Abstract beam diagram
Support reactions:
Alternate method (use uniform load directly)
1 Simple beam with point loads
2 Beam with overhang and point loads
3 Beam with uniform load and point load (wall)







